03-6264-1890
受付時間 9:00 - 18:30 定休日 土日祝
受付時間 9:00 - 18:30 定休日 土日祝
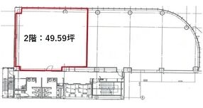
FORECAST亀戸(旧:亀戸アイマークビル) 2階
物件情報
| 所在地 | 東京都江東区亀戸2丁目27-7 |
|---|---|
| 最寄駅 |
JR中央・総武線 亀戸駅 4分 |
| 竣工 | 2010年9月 |
| 階数 | 地上8階 / 地下1階 |
| エレベーター | 2基 |
賃貸条件
| 募集区画 | 2階 |
|---|---|
| 賃料 (共益費) | -(賃料に含む) |
| 敷金 /礼金 | 12ヶ月/- |
|
保証金
/敷引/償却 |
-/-/なし |
| 面積 | 49.59坪 |
| 入居条件 | 2026年4月上旬 |