03-6264-1890
受付時間 9:00 - 18:30 定休日 土日祝
受付時間 9:00 - 18:30 定休日 土日祝
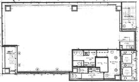
QV1(キューブワン)八丁堀 2階
物件情報
| 所在地 | 東京都中央区八丁堀1丁目11-12 |
|---|---|
| 最寄駅 | 東京メトロ日比谷線 八丁堀駅 3分 |
| 竣工 | 2022年9月 |
| 階数 | 地上9階建て |
| エレベーター | 2基 |
賃貸条件
| 募集区画 | 2階 |
|---|---|
| 賃料(共益費) | 相談(相談) |
| 敷金/礼金 | 相談/なし |
| 保証金 /敷引/償却 | -/-/なし |
| 面積 | 64.64坪 |
| 入居条件 | 2026年3月中旬 |
| 所在地 | 東京都中央区八丁堀1丁目11-12 |
|---|---|
| 最寄駅 | 東京メトロ日比谷線 八丁堀駅 3分 |
| 竣工 | 2022年9月 |
| 階数 | 地上9階建て |
| エレベーター | 2基 |
| 募集区画 | 2階 |
|---|---|
| 賃料(共益費) | 相談(相談) |
| 敷金/礼金 | 相談/なし |
| 保証金 /敷引/償却 | -/-/なし |
| 面積 | 64.64坪 |
| 入居条件 | 2026年3月中旬 |