03-6264-1890
受付時間 9:00 - 18:30 定休日 土日祝
受付時間 9:00 - 18:30 定休日 土日祝
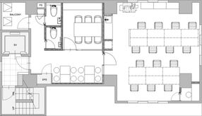
Biz Feel 茅場町(旧:SNT日本橋ビル) 3階
物件情報
| 所在地 | 東京都中央区日本橋小網町11-4 |
|---|---|
| 最寄駅 | 東京メトロ日比谷線 人形町駅 5分 都営浅草線 人形町駅 6分 東京メトロ日比谷線 茅場町駅 5分 東京メトロ東西線 茅場町駅 5分 東京メトロ半蔵門線 水天宮前駅 5分 |
| 竣工 | 2024年1月 |
| 階数 | 地上10階建て |
| エレベーター | 1基 |
賃貸条件
| 募集区画 | 3階 |
|---|---|
| 賃料(共益費) | 740,000円(賃料に含む) |
| 敷金/礼金 | なし/なし |
| 保証金 /敷引/償却 | -/-/なし |
| 面積 | 28.54坪 |
| 入居条件 | 2026年2月下旬 |