03-6264-1890
受付時間 9:00 - 18:30 定休日 土日祝
受付時間 9:00 - 18:30 定休日 土日祝
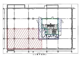
塩崎ビル 2階
物件情報
| 所在地 | 東京都千代田区平河町2丁目7-1 |
|---|---|
| 最寄駅 | 東京メトロ有楽町線 永田町駅 1分 東京メトロ銀座線 赤坂見附駅 6分 |
| 竣工 | 1963年9月 |
| 階数 | 地上7階 / 地下2階 |
| エレベーター | 2基 |
賃貸条件
| 募集区画 | 2階 |
|---|---|
| 賃料(共益費) | 1,449,000円(276,000円) |
| 敷金/礼金 | 相談/なし |
| 保証金 /敷引/償却 | -/-/なし |
| 面積 | 69.0坪 |
| 入居条件 | 2026年1月下旬 |