03-6264-1890
受付時間 9:00 - 18:30 定休日 土日祝
受付時間 9:00 - 18:30 定休日 土日祝
ACN八丁堀ビル 8階
物件情報
| 所在地 | 東京都中央区湊1丁目6-11 |
|---|---|
| 最寄駅 | 東京メトロ日比谷線 八丁堀駅 5分 JR京葉線 八丁堀駅 5分 東京メトロ有楽町線 新富町駅 8分 |
| 竣工 | 1993年3月 |
| 階数 | 地上8階建て |
| エレベーター | 1基 |
賃貸条件
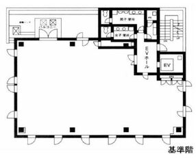
| 募集区画 | 8階 |
|---|---|
| 賃料(共益費) | 相談(相談) |
| 敷金/礼金 | 8ヶ月/なし |
| 保証金 /敷引/償却 | -/-/1ヶ月 |
| 面積 | 67.0坪 |
| 入居条件 | 2026年1月上旬 |