03-6264-1890
受付時間 9:00 - 18:30 定休日 土日祝
受付時間 9:00 - 18:30 定休日 土日祝
ninetytwo13 2階201
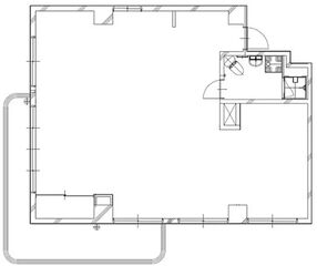
物件情報
| 所在地 | 東京都港区赤坂9丁目2-13 |
|---|---|
| 最寄駅 | 東京メトロ千代田線 乃木坂駅 5分 |
| 竣工 | 1972年1月 |
| 階数 | 地上7階 / 地下1階 |
| エレベーター | 1基 |
賃貸条件
| 募集区画 | 2階201 |
|---|---|
| 賃料(共益費) | 449,000円(20,000円) |
| 敷金/礼金 | 2ヶ月/1ヶ月 |
| 保証金 /敷引/償却 | -/-/1ヶ月 |
| 面積 | 23.59坪 |
| 入居条件 | 即入居 |