03-6264-1890
受付時間 9:00 - 18:30 定休日 土日祝
受付時間 9:00 - 18:30 定休日 土日祝
虎ノ門きよしビル 6階

物件情報
所在地 | 東京都港区虎ノ門4丁目3-10 |
---|---|
最寄駅 | 東京メトロ日比谷線 神谷町駅 1分 東京メトロ日比谷線 虎ノ門ヒルズ駅 8分 東京メトロ南北線 六本木一丁目駅 8分 |
竣工 | 1984年7月 |
階数 | 地上7階建て |
エレベーター | 2基 |
賃貸条件
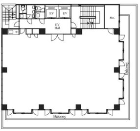
募集区画 | 6階 |
---|---|
賃料(共益費) | 1,641,860円(賃料に含む) |
敷金/礼金 | 10ヶ月/なし |
保証金 /敷引/償却 | -/-/5% |
面積 | 74.63坪 |
入居条件 | 2026年4月上旬 |