03-6264-1890
受付時間 9:00 - 18:30 定休日 土日祝
受付時間 9:00 - 18:30 定休日 土日祝
上野パークビル 5階


物件情報
所在地 | 東京都台東区東上野4丁目2-3 |
---|---|
最寄駅 | JR山手線 上野駅 3分 |
竣工 | 1991年 |
階数 | 地上9階建て |
エレベーター | 2基 |
賃貸条件
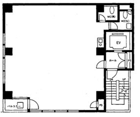
募集区画 | 5階 |
---|---|
賃料(共益費) | 399,000円(99,750円) |
敷金/礼金 | 6ヶ月/- |
保証金 /敷引/償却 | なし |
面積 | 28.5坪 |
入居条件 | 2026年1月上旬 |
所在地 | 東京都台東区東上野4丁目2-3 |
---|---|
最寄駅 | JR山手線 上野駅 3分 |
竣工 | 1991年 |
階数 | 地上9階建て |
エレベーター | 2基 |
募集区画 | 5階 |
---|---|
賃料(共益費) | 399,000円(99,750円) |
敷金/礼金 | 6ヶ月/- |
保証金 /敷引/償却 | なし |
面積 | 28.5坪 |
入居条件 | 2026年1月上旬 |