03-6264-1890
受付時間 9:00 - 18:30 定休日 土日祝
受付時間 9:00 - 18:30 定休日 土日祝
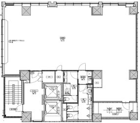
GINZA YANAGI PLAZA 6階

物件情報
所在地 | 東京都中央区銀座1丁目4-11 |
---|---|
最寄駅 | 東京メトロ有楽町線 銀座一丁目駅 1分 JR山手線 有楽町駅 4分 東京メトロ丸ノ内線 銀座駅 5分 東京メトロ銀座線 京橋駅 5分 都営浅草線 宝町駅 8分 |
竣工 | 2025年8月 |
階数 | 地上8階 / 地下1階 |
エレベーター | 2基 |
賃貸条件
募集区画 | 6階 |
---|---|
賃料(共益費) | 2,301,480円(賃料に含む) |
敷金/礼金 | 相談/1ヶ月 |
保証金 /敷引/償却 | -/-/なし |
面積 | 63.93坪 |
入居条件 | 即入居 |