03-6264-1890
受付時間 9:00 - 18:30 定休日 土日祝
受付時間 9:00 - 18:30 定休日 土日祝
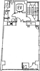
隼東幸ビル 4階


物件情報
所在地 | 東京都千代田区隼町3-19 |
---|---|
最寄駅 | 東京メトロ半蔵門線 半蔵門駅 2分 東京メトロ有楽町線 麹町駅 6分 東京メトロ有楽町線 永田町駅 7分 |
竣工 | 1990年1月 |
階数 | 地上8階建て |
エレベーター | 1基 |
賃貸条件
募集区画 | 4階 |
---|---|
賃料(共益費) | 296,100円(42,300円) |
敷金/礼金 | 6ヶ月/なし |
保証金 /敷引/償却 | -/-/2ヶ月 |
面積 | 21.15坪 |
入居条件 | 2026年2月上旬 |