03-6264-1890
受付時間 9:00 - 18:30 定休日 土日祝
受付時間 9:00 - 18:30 定休日 土日祝
近代グループBLD.12号館(THE KINDAI 12 IKEBUKURO) 5階


物件情報
所在地 | 東京都豊島区東池袋1丁目15-3 |
---|---|
最寄駅 | JR山手線 池袋駅 2分 東京メトロ有楽町線 東池袋駅 10分 |
竣工 | 1989年1月 |
階数 | 地上10階建て |
エレベーター | 1基 |
賃貸条件
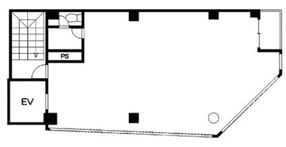
募集区画 | 5階 |
---|---|
賃料(共益費) | 723,300円(84,385円) |
敷金/礼金 | 12ヶ月/1ヶ月 |
保証金 /敷引/償却 | -/-/20% |
面積 | 24.11坪 |
入居条件 | 2025年11月上旬 |