03-6264-1890
受付時間 9:00 - 18:30 定休日 土日祝
受付時間 9:00 - 18:30 定休日 土日祝
VORT神保町Ⅳ 6階
物件情報
| 所在地 | 東京都千代田区神田神保町1丁目22-2 |
|---|---|
| 最寄駅 | 東京メトロ半蔵門線 神保町駅 3分 東京メトロ千代田線 新御茶ノ水駅 7分 JR中央・総武線 御茶ノ水駅 8分 都営新宿線 小川町駅 8分 東京メトロ丸ノ内線 御茶ノ水駅 9分 |
| 竣工 | 2022年5月 |
| 階数 | 地上11階建て |
| エレベーター | 2基 |
賃貸条件
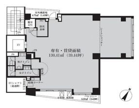
| 募集区画 | 6階 |
|---|---|
| 賃料(共益費) | 相談(相談) |
| 敷金/礼金 | 5ヶ月/1ヶ月 |
| 保証金 /敷引/償却 | -/-/なし |
| 面積 | 39.48坪 |
| 入居条件 | 2026年4月上旬 |