03-6264-1890
受付時間 9:00 - 18:30 定休日 土日祝
受付時間 9:00 - 18:30 定休日 土日祝
浅草橋ミハマビル 9階


物件情報
所在地 | 東京都台東区浅草橋3丁目20-15 |
---|---|
最寄駅 | 都営浅草線 蔵前駅 4分 JR中央・総武線 浅草橋駅 5分 |
竣工 | 1989年7月 |
階数 | 地上9階建て |
エレベーター | 2基 |
賃貸条件
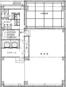
募集区画 | 9階 |
---|---|
賃料(共益費) | 相談(232,230円) |
敷金/礼金 | 8ヶ月/- |
保証金 /敷引/償却 | -/-/2ヶ月 |
面積 | 77.41坪 |
入居条件 | 2026年1月中旬 |