03-6264-1890
受付時間 9:00 - 18:30 定休日 土日祝
受付時間 9:00 - 18:30 定休日 土日祝
JMFビル江戸川橋01(旧:M-City江戸川橋ビル) 6階


物件情報
所在地 | 東京都文京区関口1丁目44-10 |
---|---|
最寄駅 | 東京メトロ有楽町線 江戸川橋駅 3分 東京メトロ東西線 神楽坂駅 11分 東京メトロ副都心線 西早稲田駅 12分 |
竣工 | 1992年8月 |
階数 | 地上8階建て |
エレベーター | 3基 |
賃貸条件
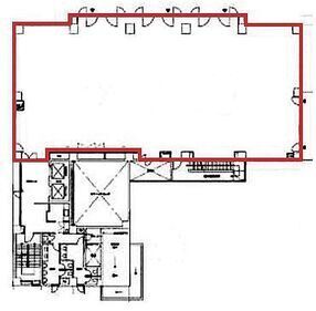
募集区画 | 6階 |
---|---|
賃料(共益費) | 相談(相談) |
敷金/礼金 | 相談/- |
保証金 /敷引/償却 | なし |
面積 | 144.68坪 |
入居条件 | 2026年2月上旬 |