03-6264-1890
受付時間 9:00 - 18:30 定休日 土日祝
受付時間 9:00 - 18:30 定休日 土日祝
品川シーサイドサウスタワー 2階


物件情報
所在地 | 東京都品川区東品川4丁目12-1 |
---|---|
最寄駅 | りんかい線 品川シーサイド駅 2分 京急本線 青物横丁駅 8分 京急本線 鮫洲駅 10分 |
竣工 | 2004年8月 |
階数 | 地上18階 / 地下1階 |
エレベーター | 11基 |
賃貸条件
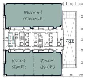
募集区画 | 2階 |
---|---|
賃料(共益費) | 相談(賃料に含む) |
敷金/礼金 | 相談/なし |
保証金 /敷引/償却 | -/-/なし |
面積 | 85.0坪 |
入居条件 | 相談 |