03-6264-1890
受付時間 9:00 - 18:30 定休日 土日祝
受付時間 9:00 - 18:30 定休日 土日祝
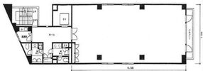
GOWA西新宿 7階

物件情報
所在地 | 東京都新宿区西新宿7丁目5-8 |
---|---|
最寄駅 | 都営大江戸線 新宿西口駅 5分 西武新宿線 西武新宿駅 5分 JR山手線 新大久保駅 6分 JR中央・総武線 新宿駅 10分 |
竣工 | 1993年5月 |
階数 | 地上10階建て |
エレベーター | 1基 |
賃貸条件
募集区画 | 7階 |
---|---|
賃料(共益費) | 相談(相談) |
敷金/礼金 | -/1ヶ月 |
保証金 /敷引/償却 | 8ヶ月/-/1ヶ月 |
面積 | 41.37坪 |
入居条件 | 2026年1月上旬 |