03-6264-1890
受付時間 9:00 - 18:30 定休日 土日祝
受付時間 9:00 - 18:30 定休日 土日祝
茅場町偕成ビル 8階

物件情報
所在地 | 東京都中央区日本橋茅場町2丁目3-6 |
---|---|
最寄駅 | 東京メトロ日比谷線 茅場町駅 3分 東京メトロ東西線 茅場町駅 4分 |
竣工 | 2009年3月 |
階数 | 地上9階建て |
エレベーター | 2基 |
賃貸条件
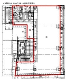
募集区画 | 8階 |
---|---|
賃料(共益費) | 相談(相談) |
敷金/礼金 | 相談/なし |
保証金 /敷引/償却 | -/-/なし |
面積 | 67.97坪 |
入居条件 | 2026年1月上旬 |