03-6264-1890
受付時間 9:00 - 18:30 定休日 土日祝
受付時間 9:00 - 18:30 定休日 土日祝
EDGE小伝馬町ビル(旧:ユニゾ小伝馬町ビル) 5階501B


物件情報
所在地 | 東京都中央区日本橋小伝馬町15-18 |
---|---|
最寄駅 | 東京メトロ日比谷線 小伝馬町駅 2分 総武線(快速) 馬喰町駅 3分 都営浅草線 東日本橋駅 4分 都営新宿線 岩本町駅 5分 |
竣工 | 1983年6月 |
階数 | 地上9階 / 地下1階 |
エレベーター | 2基 |
賃貸条件
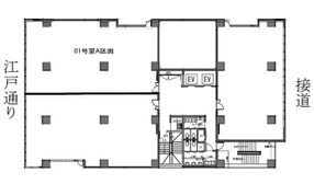
募集区画 | 5階501B |
---|---|
賃料(共益費) | 相談(賃料に含む) |
敷金/礼金 | 相談/なし |
保証金 /敷引/償却 | -/-/なし |
面積 | 48.64坪 |
入居条件 | 2026年1月上旬 |