03-6264-1890
受付時間 9:00 - 18:30 定休日 土日祝
受付時間 9:00 - 18:30 定休日 土日祝
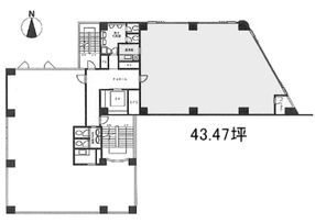
品川MSビル 2階A
物件情報
| 所在地 | 東京都品川区北品川3丁目6-2 |
|---|---|
| 最寄駅 | 京急本線 北品川駅 3分 JR山手線 品川駅 11分 |
| 竣工 | 1989年9月 |
| 階数 | 地上9階建て |
| エレベーター | 1基 |
賃貸条件
| 募集区画 | 2階A |
|---|---|
| 賃料(共益費) | 391,230円(86,940円) |
| 敷金/礼金 | 6ヶ月/1ヶ月 |
| 保証金 /敷引/償却 | -/-/なし |
| 面積 | 43.47坪 |
| 入居条件 | 即入居 |