03-6264-1890
受付時間 9:00 - 18:30 定休日 土日祝
受付時間 9:00 - 18:30 定休日 土日祝
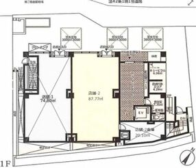
豊匯ビル(旧:(仮称)神宮前5丁目ビル) 1階2


物件情報
所在地 | 東京都渋谷区神宮前5丁目42-14 |
---|---|
最寄駅 | 東京メトロ銀座線 表参道駅 7分 東京メトロ千代田線 明治神宮前<原宿>駅 10分 東急東横線 渋谷駅 10分 JR山手線 原宿駅 14分 |
竣工 | 2025年7月 |
階数 | 地上5階 / 地下1階 |
エレベーター | 1基 |
賃貸条件
募集区画 | 1階2 |
---|---|
賃料(共益費) | 1,074,080円(賃料に含む) |
敷金/礼金 | 5ヶ月/1ヶ月 |
保証金 /敷引/償却 | -/-/15% |
面積 | 26.55坪 |
入居条件 | 即入居 |