03-6264-1890
受付時間 9:00 - 18:30 定休日 土日祝
受付時間 9:00 - 18:30 定休日 土日祝
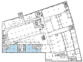
コスモス青山ビル 地下2階
物件情報
| 所在地 | 東京都渋谷区神宮前5丁目53-67 |
|---|---|
| 最寄駅 | 東京メトロ千代田線 表参道駅 7分 JR山手線 渋谷駅 12分 |
| 竣工 | 1995年7月 |
| 階数 | 地上5階 / 地下4階 |
| エレベーター | 5基 |
賃貸条件
| 募集区画 | 地下2階 |
|---|---|
| 賃料(共益費) | 相談(794,500円) |
| 敷金/礼金 | 12ヶ月/- |
| 保証金 /敷引/償却 | なし |
| 面積 | 113.5坪 |
| 入居条件 | 即入居 |