03-6264-1890
受付時間 9:00 - 18:30 定休日 土日祝
受付時間 9:00 - 18:30 定休日 土日祝
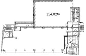
ラピロス六本木ビル 6階
物件情報
| 所在地 | 東京都港区六本木6丁目1-24 |
|---|---|
| 最寄駅 | 都営大江戸線 六本木駅 1分 東京メトロ千代田線 乃木坂駅 9分 東京メトロ南北線 六本木一丁目駅 10分 |
| 竣工 | 1997年8月 |
| 階数 | 地上10階 / 地下2階 |
| エレベーター | 2基 |
賃貸条件
| 募集区画 | 6階 |
|---|---|
| 賃料(共益費) | -(賃料に含む) |
| 敷金/礼金 | 相談/- |
| 保証金 /敷引/償却 | なし |
| 面積 | 114.02坪 |
| 入居条件 | 2025年9月上旬 |