03-6264-1890
受付時間 9:00 - 18:30 定休日 土日祝
受付時間 9:00 - 18:30 定休日 土日祝
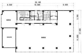
ニシザワビル 2階
物件情報
| 所在地 | 東京都千代田区内神田3丁目14-8 |
|---|---|
| 最寄駅 |
JR山手線 神田駅 1分 東京メトロ銀座線 神田駅 2分 都営新宿線 小川町駅 5分 |
| 竣工 | 1971年11月 |
| 階数 | 地上6階 / 地下1階 |
| エレベーター | 1基 |
賃貸条件
| 募集区画 | 2階 |
|---|---|
| 賃料 (共益費) | -(360,510円) |
| 敷金 /礼金 | 10ヶ月/- |
|
保証金
/敷引/償却 |
-/-/なし |
| 面積 | 120.17坪 |
| 入居条件 | 即入居 |