03-6264-1890
受付時間 9:00 - 18:30 定休日 土日祝
受付時間 9:00 - 18:30 定休日 土日祝
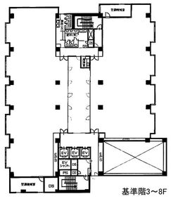
東京日産台東ビル 4階東
物件情報
| 所在地 | 東京都台東区元浅草2丁目6-6 |
|---|---|
| 最寄駅 |
東京メトロ銀座線 稲荷町駅 3分 都営大江戸線 新御徒町駅 4分 JR山手線 上野駅 10分 |
| 竣工 | 1992年9月 |
| 階数 | 地上10階 / 地下2階 |
| エレベーター | 3基 |
賃貸条件
| 募集区画 | 4階東 |
|---|---|
| 賃料 (共益費) | -(相談) |
| 敷金 /礼金 | 相談/- |
|
保証金
/敷引/償却 |
-/-/なし |
| 面積 | 102.41坪 |
| 入居条件 | 2023年6月中旬 |