03-6264-1890
受付時間 9:00 - 18:30 定休日 土日祝
受付時間 9:00 - 18:30 定休日 土日祝
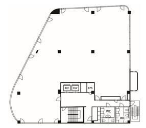
I・O・B(IOB) 8階


物件情報
所在地 | 東京都豊島区西池袋2丁目41-8 |
---|---|
最寄駅 | JR山手線 池袋駅 2分 東京メトロ丸ノ内線 池袋駅 2分 |
竣工 | 1991年7月 |
階数 | 地上10階 / 地下1階 |
エレベーター | 2基 |
賃貸条件
募集区画 | 8階 |
---|---|
賃料(共益費) | -(相談) |
敷金/礼金 | 10ヶ月/なし |
保証金 /敷引/償却 | -/-/なし |
面積 | 138.56坪 |
入居条件 | 即入居 |