03-6264-1890
受付時間 9:00 - 18:30 定休日 土日祝
受付時間 9:00 - 18:30 定休日 土日祝
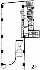
KDX新宿286ビル 2階
物件情報
| 所在地 | 東京都新宿区新宿2丁目8-6 |
|---|---|
| 最寄駅 |
東京メトロ丸ノ内線 新宿御苑前駅 2分 東京メトロ丸ノ内線 新宿三丁目駅 4分 JR山手線 新宿駅 10分 |
| 竣工 | 1989年8月 |
| 階数 | 地上9階 / 地下1階 |
| エレベーター | 2基 |
賃貸条件
| 募集区画 | 2階 |
|---|---|
| 賃料 (共益費) | -(賃料に含む) |
| 敷金 /礼金 | 12ヶ月/- |
|
保証金
/敷引/償却 |
なし |
| 面積 | 74.08坪 |
| 入居条件 | 2022年12月上旬 |