03-6264-1890
受付時間 9:00 - 18:30 定休日 土日祝
受付時間 9:00 - 18:30 定休日 土日祝
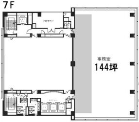
SOUTH PORT品川 7階
物件情報
| 所在地 | 東京都港区港南2丁目12-32 |
|---|---|
| 最寄駅 |
JR山手線 品川駅 8分 |
| 竣工 | 1994年5月 |
| 階数 | 地上12階 / 地下1階 |
| エレベーター | 3基 |
賃貸条件
| 募集区画 | 7階 |
|---|---|
| 賃料 (共益費) | -(579,560円) |
| 敷金 /礼金 | 12ヶ月/- |
|
保証金
/敷引/償却 |
-/-/なし |
| 面積 | 144.89坪 |
| 入居条件 | 2021年12月上旬 |