03-6264-1890
受付時間 9:00 - 18:30 定休日 土日祝
受付時間 9:00 - 18:30 定休日 土日祝
ラウンドクロス渋谷 8階
物件情報
| 所在地 | 東京都渋谷区渋谷2丁目11-6 |
|---|---|
| 最寄駅 |
JR山手線 渋谷駅 8分 東京メトロ銀座線 渋谷駅 8分 東急東横線 渋谷駅 8分 |
| 竣工 | 2007年3月 |
| 階数 | 地上9階建て |
| エレベーター | 1基 |
賃貸条件
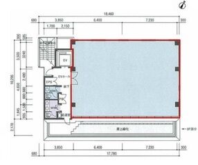
| 募集区画 | 8階 |
|---|---|
| 賃料 (共益費) | -(賃料に含む) |
| 敷金 /礼金 | 12ヶ月/なし |
|
保証金
/敷引/償却 |
-/-/なし |
| 面積 | 43.28坪 |
| 入居条件 | 即入居 |