03-6264-1890
受付時間 9:00 - 18:30 定休日 土日祝
受付時間 9:00 - 18:30 定休日 土日祝
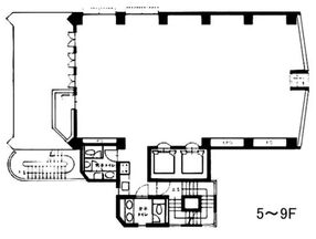
オーイズミ六本木ビル(旧:オーキッドプレイス六本木(旧:ヒューリック六本木二丁目ビル)) 8階
物件情報
| 所在地 | 東京都港区六本木2丁目2-8 |
|---|---|
| 最寄駅 |
東京メトロ南北線 六本木一丁目駅 3分 東京メトロ銀座線 溜池山王駅 3分 東京メトロ千代田線 赤坂駅 8分 |
| 竣工 | 1989年5月 |
| 階数 | 地上9階 / 地下1階 |
| エレベーター | 2基 |
賃貸条件
| 募集区画 | 8階 |
|---|---|
| 賃料 (共益費) | -(相談) |
| 敷金 /礼金 | 10ヶ月/- |
|
保証金
/敷引/償却 |
-/-/なし |
| 面積 | 49.93坪 |
| 入居条件 | 即入居 |